
概述
我公司生產的FGL-A、FGL-B、FGL、FG型水過濾器,引進國外先進技術、以其先進合理的結構形式、可靠聽、高效的性能,在國內水過濾器應用場合獨樹一幟。本產品廣泛適用于冶金、化工、輕紡、食品、電站等連續用水的場合;大、中型鋼鐵廠的冶鐵、連鑄、連軋等工藝流程中,更體現使用本產品的優越性和合理性。
產品結構特點
1、高強度低碳全不銹鋼濾芯
濾芯是由粗、細精度雙層濾網組成,通過二次過濾,確保用戶對水質要求。特殊的過濾網結構,反沖洗時能順利將雜質清除。
2、全自動的連續供水功能
本機不需要停機就可以自動進行反沖洗來清除雜質,保證了濾芯的正常工作,達到連續供給清水的目的。
3、自動識別濾網清潔度
因濾芯的清潔度下降,使進出口的水壓達到設定壓差時,自動開始反沖洗濾網及污水及時排出,恢復濾網的清潔度。
4、大過濾面積和過濾空間
本機罐體內空間均布若干個濾芯,過濾總面積為入口面積6-10倍,大過濾面積只需低頻反沖,且壓力損失很小。
5、體積小
由于本機是引進國外先進技術,充分利用了過濾空間,體積是砂濾器1/10。
6、可靠的反沖機構
本機的反沖吸盤是由高強度、高耐磨塑性材料制成,吸盤裝在濁水腔中,濾芯裝在清水腔中,用隔板分開,同時吸盤緊靠在不銹鋼隔板上,因而反沖機構經久耐用。
7、全方位的清除雜質的功能
本機設有自動反沖洗功能,安裝了高精度靈敏的差壓控制器,監測進出腔的壓力值,當兩腔由于渣堵塞濾芯引起壓力差達到設定值時,差壓控制器輸出電信號,啟動反沖系統,將渣排出。本機使用一段時間后,對沉積罐底的固體物質,可通過本機下方手動球閥排出。當設備檢修時,還可以打開罐體上的盲蓋,人工進一步清除罐體內大型垃圾。
8、自動清洗功能
本機的反沖原理先進,即利用自身的水壓進行沖洗,不需要另外配置壓縮空氣和反沖水系統。
9、濾芯更換簡捷方便
濾芯安裝在罐體上半部,只需在停機時打開上封壯舉,即可擰動濾筒頂部六角頭,方便地拆卸、清理或更換濾筒。
10、二種結構電器控制箱可供選擇
A、采用通用的時間繼電器控制。
B、采用PLC可變程序電腦控制。
11、經久耐用
本機內部結構采用不銹鋼制造,耐腐蝕,使用壽命長。
技術參數
名稱 |
單位 |
規格 |
備注 |
100
|
150 |
200 |
250 |
300 |
350 |
400 |
450 |
500
|
600 |
700
|
800 |
900 |
1000 |
流量 |
T/h |
100
|
150 |
200 |
350 |
500
|
800 |
1000
|
1200 |
1500 |
2000
|
3000 |
4000 |
5000 |
6000 |
|
過濾精度 |
mm |
0.05-12.0 |
|
介質 |
|
工業淡水 |
|
******工作壓力 |
MPa |
1.0-1.6 |
|
反沖洗起始
差壓
|
MPa |
0.02-0.04 |
|
差壓設定范圍 |
MPa |
0.02-0.16 |
|
二次反沖洗間隔時間設定范圍 |
h |
8-96 |
|
反沖洗時間設定范圍 |
s |
0-180 |
|
反沖洗驅動電裝型號 |
|
Q50A |
Q100A A.C 220V |
Q200A A.C 220V |
常州電站 |
反沖洗驅動電裝功率 |
KW |
0.10 |
0.25 |
0.37 |
|
反沖洗排污球閥電裝型號 |
|
Q25A A.C 220V |
Q50A A.C 220V |
Q100A A.C 220V |
常州電站 |
反沖洗排污球閥電裝功率 |
KW |
0.05 |
0.1 |
0.25 |
|
差壓控制器
型號
|
|
D520/7DD |
上海遠東儀表廠(德國技術) |
壓力損失 |
MPa |
0.02-0.04 |
|
反沖洗耗水量 |
T/次 |
1.8 |
2.9 |
6.4 |
|
總耗電量 |
KW |
0.2 |
0.4 |
0.67 |
|
工作方式 |
|
自動、手動 |
|
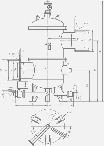
水過濾器外形圖

|