特點
用于輸送ρ=0.8~1.2t/m3的粒度不大于30mm(******粒度含量小于20%)、粒狀、粉狀和小塊狀物料。對于堅硬的物料(指不易壓碎的物料),要求******粒度(允許含有10%)不大于20mm。
輸送物料的溫度為100~450℃。瞬時物料溫度允許達到800℃。
可以用于水平或向上傾斜輸送(0~15°),不能作向下傾斜輸送。對于流動性大的物料(硫鐵礦渣等),推薦用水平輸送形式。
技術參數
型號 |
MSR32 |
MSR40 |
機槽寬度B,mm |
320 |
400 |
機槽高度h,mm |
320 |
360 |
刮板鏈條 |
節距t,mm |
200 |
200 |
型式 |
BT |
BT |
許用載荷,N |
42900×2 |
42900×2 |
輸送效率η |
0.4-0.6 |
0.4-0.6 |
輸送能力Q,m3/h |
刮板鏈條速度V,m/s |
0.16 |
23.6~35.4 |
33.2~49.8 |
0.20 |
29.5~44.2 |
41.5~62.2 |
0.25 |
36.9~55.3 |
51.8~77.8 |
0.32 |
47.2~70.8 |
66.4~99.5 |
輸送機的允許******長度Lmax,m |
物料松散密度t/m3 |
0.8 |
70 |
60 |
1.0 |
70 |
50 |
1.2 |
60 |
40 |
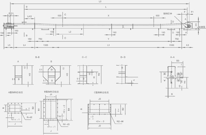
外形圖

|