
用途
HS型刮板輸送機是一種用于水平或傾斜布置輸送粉狀、粒狀物料的機械產品。本產品設計合理、結構新穎、使用壽命長,運轉可靠性高、節能高效、輸送距離長、密封性能好且維修方便。已廣泛用于冶金、建材、化工、火電、礦山等行業。
工作原理
散狀物料顆粒間具有其內摩擦力,物料相對機殼又有外摩擦力,它在機槽內受到輸送鏈在其運動方向的拉力,使其內部壓力增加,顆粒之間的內摩擦力增大,在水平輸送時,這種內摩擦力保證了料層之間的穩定狀態,形成了連續的整體流動。當料層之間的內摩擦力大于物料與槽壁之間的外摩擦力時,物料就隨著輸送鏈一起向前運動,當料層高度與機槽寬度的比值滿足一定條件時,料流是穩定的。而當料層低于刮板高度和料層高度不均勻時料流的整體性和穩定性被破壞,但此時物料是被刮板推送前進。
特點
1、HS型刮板輸送機專用于磨琢性強、堆積比重大的粉狀和小顆粒狀物料的輸送例如燒結礦粉、高爐粉塵等。
2、鑒于它的專用性,設計速度低,牽引力大,使用壽命長。
3、全密封的機殼無粉塵外泄,改善工作環境。
4、輸送鏈采用合金鋼材經先進的熱處理手段加工而成,耐磨損、強度大。
5、驅動裝置的安裝采用背裝式,(左裝或右裝)鏈傳動,即方便安裝又減少占地面積。
技術參數
項目 |
HS200 |
HS250 |
HS310 |
HS400 |
HS450 |
槽寬(mm) |
200
|
250 |
310 |
200 |
200 |
輸送能力(m3/h) |
2-5 |
4-8 |
6-12
|
2-5
|
2-5 |
鏈速(m/min) |
2.4-4 |
2.4-4 |
2.4-4 |
2.4-4 |
2.4-4 |
鏈條節距(mm) |
152.4 |
152.4 |
152.4 |
152.4 |
152.4 |
輸送距離(m) |
5-60 |
6-60 |
6-60 |
5-60 |
5-60 |
輸送斜度(°) |
≤15 |
電機功率(KW) |
1.5-5.5 |
1.5-7.5 |
2.2-11 |
3-11 |
4-15
|
驅動裝置安裝型式 |
左右裝,背裝式 |
傳動型式 |
鏈傳動 |
適用粒度(mm) |
<5 |
<8 |
<12 |
<15 |
<20 |
適用濕度(%) |
≤15 |
適用溫度(℃) |
≤150 |
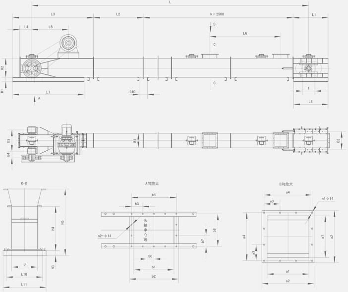
外形尺寸及連接尺寸
型號
|
HS200 |
HS250 |
HS310 |
HS400 |
HS450 |
結
構
尺
寸
|
L1 |
1000 |
1000 |
1000 |
1500 |
1500 |
L2 |
調整段長度視具體要求定 |
L3
|
2120 |
2120 |
2120 |
2500 |
2500 |
L4 |
340 |
340 |
340 |
500 |
500 |
L5 |
1000 |
1000 |
1000 |
1120 |
1120 |
L6 |
根據工藝需要設計確定 |
H1 |
120 |
120 |
120 |
120 |
120 |
H2 |
545 |
545 |
545 |
840 |
840 |
H3 |
120 |
120 |
120 |
120 |
120 |
H4 |
545 |
545 |
545 |
650 |
650 |
H5 |
795-845 |
795-845 |
795-845 |
950-1000 |
950-1000 |
B |
200 |
250 |
310 |
400
|
450 |
B1 |
320 |
370 |
430 |
520 |
570 |
B2 |
410 |
470 |
530 |
690 |
740 |
B3 |
500 |
550 |
610 |
700 |
750 |
T |
250 |
250 |
250 |
320 |
320 |
T1 |
350 |
350 |
350 |
590 |
590 |
n |
根據工藝需要設計確定 |
進
料
口
|
a1 |
200 |
300 |
350
|
400 |
400 |
a2 |
300 |
400 |
450
|
500 |
500 |
a3 |
130 |
180 |
135、140、135 |
150 |
150 |
a4 |
260 |
360 |
410 |
460 |
460 |
n1 |
8
|
8 |
12 |
16 |
16 |
出
料
口
|
b1 |
480 |
480 |
480 |
480 |
480 |
b2 |
576 |
576 |
576 |
576 |
576 |
b3 |
134 |
134 |
134 |
134 |
134 |
b4 |
536 |
536 |
536 |
536 |
536 |
b5 |
210 |
260 |
320 |
400 |
450 |
b6 |
306 |
356 |
426 |
508 |
558 |
b7 |
133 |
157.5 |
130 |
102.5 |
127.5 |
b8 |
266 |
315 |
290 |
460 |
510 |
n2 |
12 |
12 |
14 |
16 |
16 |
安
裝
尺
寸
|
L7 |
1750 |
1750 |
1750 |
2000 |
2000 |
L8 |
950 |
950 |
950 |
1425 |
1425 |
L10 |
320 |
370 |
430 |
520 |
570 |
L11 |
370 |
420 |
480 |
570 |
620 |
n3 |
根據工藝需要設計確定 |
外形尺寸圖

|