
概況
XFW物料旋轉閥,是我公司技術部門會同有關科研院所及使用單位,參照瑞士布勒公司和日本細川公司粉體給料機的外型結構、有關技術參數,并按我國原化工部、機械部的有關標準,開發設計而成的一種新型給料設備,尤為適用于石油、化工、醫藥等行業易燃、易爆場合干燥粉狀和小顆粒物料的喂送。
特點
進出料口按原化工部HG20593-97標準標準法蘭設計,便于設計和使用單位選用(特殊場合,可按用戶要求確定)。
機體左右法蘭與軸之間采用德國“BASF”公司的密封形式、密封嚴密可靠,極細的物料也不會泄漏。
帶有壓力平衡裝置,可用在正、負壓輸送等場合。
葉輪有“一”字形、“V”字形、“U”字形等形式,并設計成可拆式,當使用過程中產生葉輪粘料而影響工作或變更物料性質時,很方便地拆卸、清洗。
整機采用直聯或鏈傳整體式,精致、輕巧,驅動裝置無需另設安裝基礎,減少占用空間、節省費用。
可采用鑄鐵、鑄鋼、不銹鋼、鈦鋼等多種結構形式、滿足用戶不同場合的需求。
基本參數
型號 |
XFW100 |
XFW150 |
XFW200 |
XFW250 |
鏈輪式 |
直連式 |
鏈輪式 |
直連式 |
鏈輪式 |
直連式 |
鏈輪式 |
直連式 |
生產能力m3/h |
0.5 |
1.0 |
0.8 |
1.6 |
2.6 |
5.2 |
6.6 |
13.3 |
葉輪轉速r/min |
16.3 |
32.3 |
16.3 |
32.3 |
16.4 |
32.5 |
16.4 |
32.5 |
葉輪直徑mm |
Φ100 |
Φ150 |
Φ200 |
Φ250 |
減速機 |
功率 |
0.55-0.75kw |
1.1kw |
型號 |
BWY或BLY |
型號 |
XFW300 |
XFW350 |
XFW400 |
XFW500 |
鏈輪式 |
直連式 |
鏈輪式 |
直連式 |
鏈輪式 |
直連式 |
鏈輪式 |
直連式 |
生產能力m3/h |
10.5 |
21 |
18.6 |
32.3 |
23.6 |
47.3 |
39.4 |
78.8 |
葉輪轉速r/min |
16.3 |
32.3 |
16.3 |
32.3 |
16.4 |
32.5 |
16.4 |
32.5 |
葉輪直徑mm |
Φ300 |
Φ350 |
Φ400 |
Φ500 |
減速機 |
功率 |
1.1kw |
2.2kw |
型號 |
BWY或BLY |
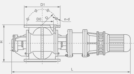
外形安裝尺寸
直聯式:
型號 |
L |
H |
D |
D0
|
D1 |
n×d |
XFW120 |
1019 |
250 |
210 |
130 |
220 |
8×18 |
XFW150 |
1049 |
290 |
240 |
160 |
285 |
8×22 |
XFW200 |
1151 |
350 |
295
|
220 |
340
|
8×22 |
XFW250 |
1201 |
420 |
350 |
270 |
395 |
12×22 |
XFW300 |
1270 |
500 |
400 |
320 |
445 |
12×22 |
XFW350 |
1330 |
550 |
460 |
375 |
505 |
16×22 |
XFW400 |
1442 |
630 |
515 |
425 |
565 |
16×26 |
XFW500 |
1542 |
750 |
620 |
530 |
670 |
20×26 |

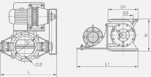
鏈輪式:
型號 |
L |
L1 |
H |
D |
D0
|
D1 |
n×d |
XFW120 |
500 |
460 |
250 |
210 |
130 |
220 |
8×18 |
XFW150 |
550 |
505 |
290 |
240 |
160 |
285 |
8×22 |
XFW200 |
665 |
705 |
350 |
295 |
220 |
340 |
8×22 |
XFW250 |
745 |
810 |
420 |
350 |
270 |
395 |
12×22 |
XFW300 |
800 |
850 |
500 |
400
|
320 |
445 |
12×22 |
XFW350 |
880 |
885 |
550 |
460 |
375 |
505 |
16×22 |
XFW400 |
920 |
925 |
630 |
515 |
425 |
565 |
16×26 |
XFW500 |
1020 |
1025 |
750 |
620 |
530 |
670 |
20×26 |

|